• entire 2 top floors of boutique building
• extraordinary harbour and city views
• iconic waterfront reserve location
• 48% of the Unit Entitlements
• landmark Art-Deco block of 6
• existing use rights to roof space (Subject to Approvals)
• Sydney on parade from almost every room
• full renovation in both apartments
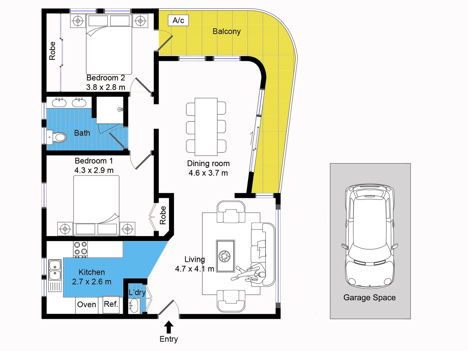
• apartment 1- 270m2 + garage + storage
• apartment 2 - 88m2 + garage + storage
• fully renovated with 406m2 on Title
• Gross Annual Rent (est) $253,000 per annum
• security building with internal access to garages

















